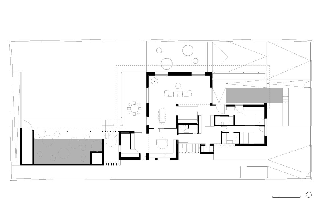
• A manutenção do carácter de vivência das habitações em presença nesta zona da cidade constituiu o ponto de partida para a ideia base da intervenção. Estas habitações, na generalidade, de dimensões bastante generosas (quer ao nível da construção, quer ao nível da dimensão do lote) constituem zonas bastante pressionadas no sentido da alteração do uso original do espaço (habitação>terciário) pelo que a preservação da vivência habitacional nos pareceu o ponto fulcral da concepção do espaço interior e exterior da edificação, dos espaços de logradouro e da sua capacidade para criar zonas de lazer privado/semi-privado através de pequenos jardins.

    O edifício é composto por um conjunto pré-existente bastante rico nos jogos de volumes, quer ao nível da forma, quer ao nível dos jogos de luz e sombra criados por pérgolas e coberturas inclinadas e balançadas, com ângulos precisos e visualmente complementares. A esta pré-existência adicionam-se, externamente, pequenos gestos ao nível da materialidade e da composição de fachadas, planos e vãos, numa tentativa de ‘actualizar’ o espaço resultante da apropriação para novas vivências e novas funções inexistentes à data do projecto inicial.

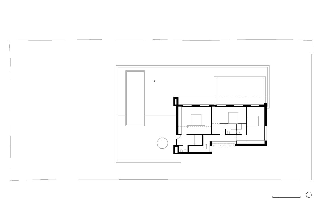
    O piso em cave e o piso térreo alojarão as funções tradicionalmente públicas do fogo (cozinha, salas, piscina, estacionamento, escritório, etc.), remetendo para o piso 1 os espaços privados dos quartos e sanitários de apoio.

    A restante intervenção dá-se ao nível dos arranjos exteriores da área de pavimento do lote tentando impermeabilizar o solo o menos possível.

    Autoria – Estúdio Urbano Arq. + Jorge Fernandes, Arq.

    Projetos de Especialidades – Pórtico Vertical, Lda.

    Programa – Habitação

    Área do lote – 1375m2

    Área de construção - 702,15 m2

    Data Projeto – 2007

    Fase de trabalho – construído

    033 Restelo

    Remodelação e Ampliação de Moradia Unifamiliar, Restelo